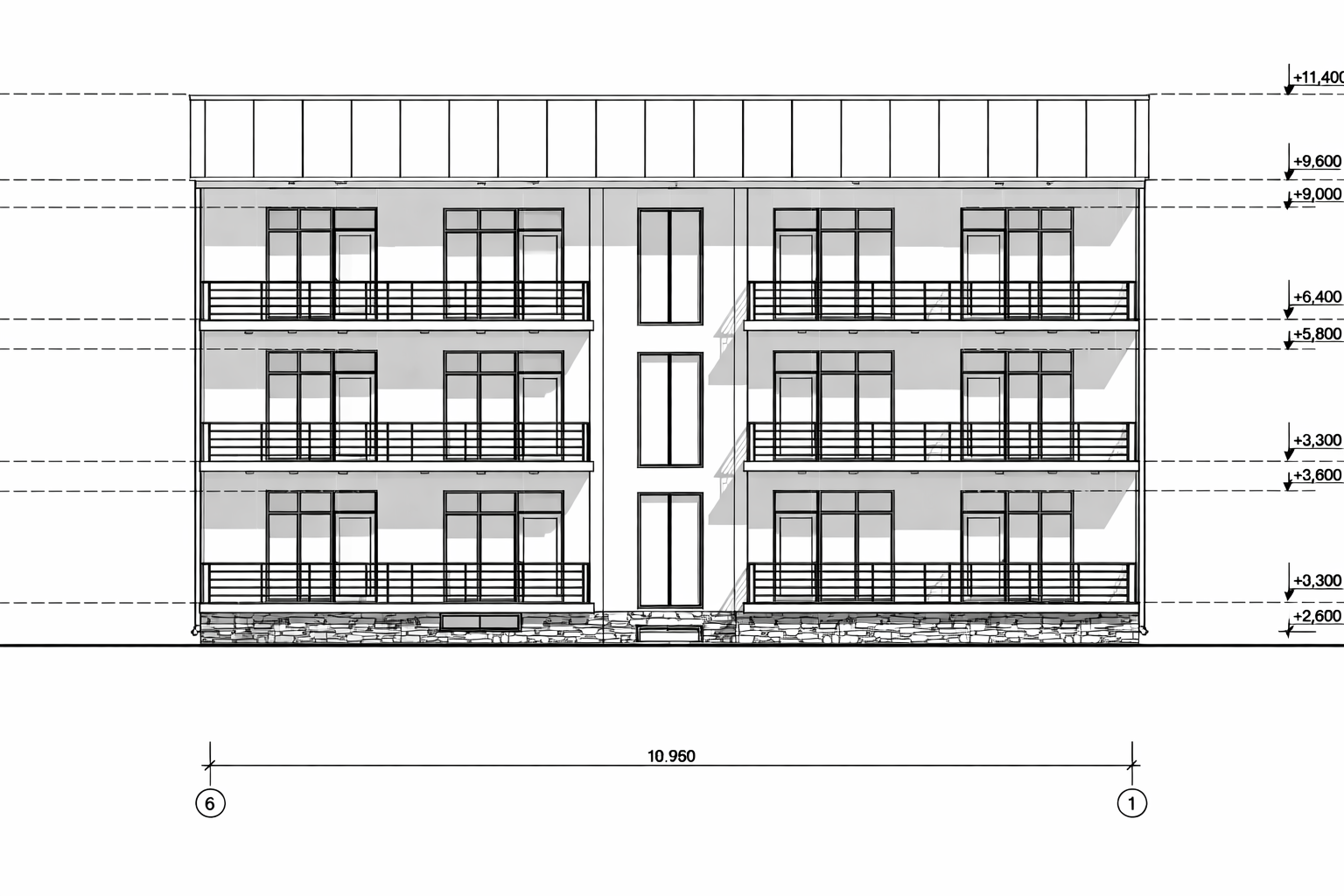
Этажность
Трёхэтажный гостевой дом с цокольным этажом, расположенный в селе Бостери (участок Уч-Кара №2/15, Иссык-Кульский район). Проект разработан для комфортного размещения гостей и рационального использования пространства. Планировочное решение включает протяжённый коридор площадью 40,5 м² и несколько жилых блоков со спальнями и индивидуальными санузлами. Площади спален варьируются от 10,3 до 13,2 м², санузлы — от 2,6 до 2,7 м². Общая площадь одного из этажей составляет 169,3 м². Конструкция здания сочетает монолитный железобетон и энергоэффективные EMMEDUE панели, обеспечивая прочность, долговечность и высокий уровень теплосбережения.
